E para ver mais vá com o mouse para a direita >>> e encontre escondido uma barra que contem as palavras chaves deste blog.
2013
GMD
- Link's ao Vivo, com Instalação Elétrica e cabos de Fibra Ótica

PAOLA ROSELLINI
- Levantamentos de propostas de orçamento, medidas in loco e vetorização de plantas
- Propostas Reforma de Suite


SÓLIDA - Augusto Camacho
- Redistribuição de vagas de estacionamento
- Desenho Executivo de Esquadrias


2012
PAOLA ROSELLINI
- Desenho executivo para base de alvenaria em Cozinha
- Desenho executivo para instalação elétrica
- Desenho de bancada para Banheiro



JANDIRA
- Vetorização de Levantamento in loco
- Instalação Hidráulica de áqua


MARIANI DALAN
- Layout e vistas para apresentação de proposta para Design de Interiores



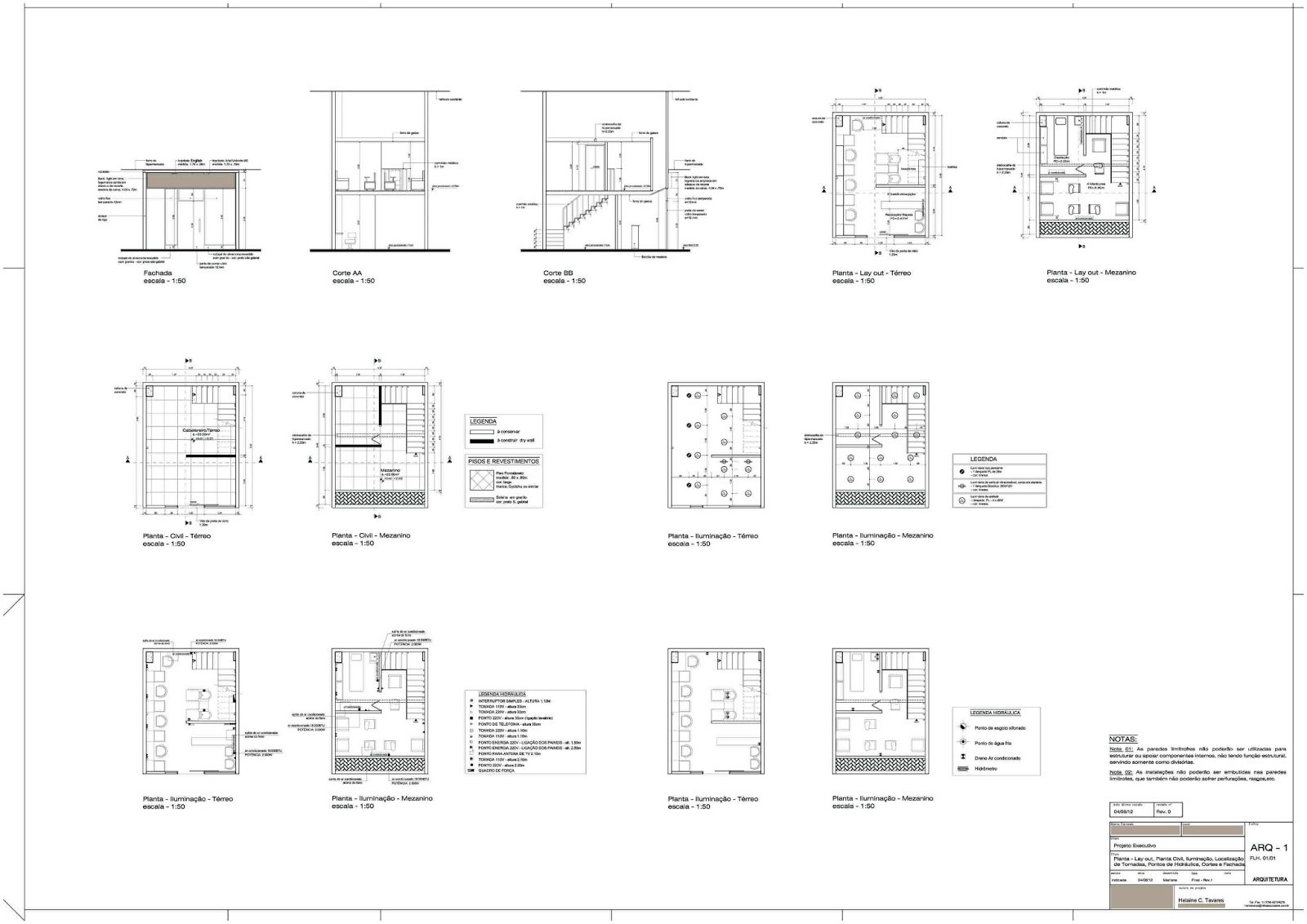
NANI TAVARES
- Desenho Executivo de Espaços de Lojas Comerciais

GOLOMBEK
- Dimensionamento para apresentaçao de proposta de painéis verde para ParedeVerde


ADRIANA FRALETTI
- Levantamento in loco

ACRESCENTE COM COMENTÁRIOS
Nenhum comentário:
Postar um comentário
ACRESCENTE COM COMENTÁRIOS